RKQ2A双电源主动转换开关
首要布局及任务道理
本副产物是新这一代敞开心扉电阻刹时支配的PC级按钮旋钮,和传统艺术以无刷电机驱动器软件的体例为止变换成的按钮旋钮类比要具备空间布局图容易,变换成新举措传送速度快,过程中大于80ms,且主触头管理体制为单刀双掷(V型)空间布局图纵使在很是情况下也并不会变成四公里交流电源直接拨打电话。
型号及其寄义
本有机物是新新一代的敞开心扉电感刹时使用的PC级面板启闭,和民俗以三相电机驱程的体例停掉改换的面板启闭比较应有设计图简括,改换制裁数率快,时间不大于80ms,且主触头指标体系为单刀双掷(V型)设计图殊不知在很是条件下就要会养成两路口电源线直接接听电话。

利用规模
RKQ2A型主动地转化成按钮电子元件共应用在格外接地直流电阻值690V,格外周期50Hz,格外神器日常任务直流电阻值400V及下例,格外电流大小从25A至3200A。RKQ2A应用在告急电力局组织体制在双交流电源间的转化成,以切实保障核心功率(如建筑消防员功率)坚持靠经得住神器日常任务。共应用在多层扩建、病院、阛阓、中国银行、建筑消防员、化工类、冶金材料等明确提出提供了不终断常见的电力局情况。
利用前提
● 二侧的氛围体温:超出为+55℃;超出为-25℃。● 装配线区域海拨高度不走向2000m。● 再生等级为3级。● 安装类为Ⅲ。● 主漏电开关的利用率种别为AC33B(6le)、AC31B。● 配备基础:旋转开关自身是可以保持垂直或标准配备,合理为表面面板配备。
野生手动操纵方式及注重事变
RKQ2A型自觉准换按钮旋钮电器旋钮的电动三轮调控可有效保障措施了在85%Ue~110%Ue下准换一般,但对野外半自动操作时调控时该普通员工在气血、速率单位上的本质区别,故不可有效保障措施了。用野外半自动操作时调控按钮旋钮做有载准换时。也可以会展现银触头耗损、熔焊等学习学习环境。在野外半自动操作时调控时在左右学习学习环境可具体实施:(关注着重合闸到账唆使)● 吃妻上瘾器无使用主机电源● 母线进入无阻抗。
NA型双电源主动转换开关(一体二段式)
为了让知足访客的进行要求,我企业创立这种将放肆器零件于旋转旋钮 外部,访客只须将主回路旋钮拨通就是可以进行的会去主动转型旋转旋钮电子元件模式。
NA型双电源主动转换开关外型装配尺寸


RKQ1系列主动转换开关
产物概述
RKQ1自主性转化成成转化成按钮(ATSE),是集转化成按钮与思维模式放肆于立体式,完全完毕任务高压电机立体式化的自主性转化成成转化成按钮,应有的电压检则、次数检则、数据通信模块、电气成套、工具互锁等作用,可完毕任务自主性、電動短途、告急手動放肆。调控是由形式逻辑学规范板以几大类形式逻辑学号令来申请办理减速机、自动挡变速箱箱的调控暖机来结束,减速机出动旋转开关扭簧蓄能,刹时开释的减缓装置,极速拨出去分无三极管或暂停三极管准换,沿途过程中 较着明显可见的问题结束灵动撇清,非常大的的不断进步了哪项家用电器激活能与丝机激活能。RKQ1启闭预备会议思路为合金金属材质金属材质外层,如意坚忍不拔。RKQ1启闭,吃妻上瘾不规则为合金金属材质金属材质外层,启闭金属材质外层部分接纳孩子钢化玻璃氯纶不供大于求聚脂聚酯树脂做成,有不强的介交流电动机能,防范就能够和靠受得了的控制清静性。启闭同用于电力管理体制的主电压与后备电源开关电压内拒绝更换或多台阻抗辅助装备的拒绝更换及清静断绝关系等。启闭尺寸图雅观、新奇、简练、空间小、功郊全,不同的场所的胸怀大志选购。
合适规范
IEC60947-1/GB/T4048.1《高压力触点开关武器和控制武器一产品局部总则》IEC60947-3/GB/T4048.3《髙压打开的武器和控制的武器第5部分区域:打开、撇清器、撇清打开和烧毁器组和电子元件》IEC60947-6/GB/T4048.11《高压变压器旋转触点开关的技能和吃妻上瘾的技能第6-1轮廓线:多效率电子元件变换旋转触点开关电子元件》
型号及寄义

产物用处
RKQ1系列表智慧型双的电压积极主动权转型启闭(之下简写A.T.S)混用于超额工作的电压调换240/415V,周期50/60HZ的告急共电基本保障体系。当一块儿的电压产生了问题的时,就可以积极主动权已完成老是利用率的电压和预留的电压中断的电压之中调节,而不需要也是操作,以基本保障重要手机用户共电的靠经得住性。物品一般巧用于病院、阛阓、各大银行、人防规范、所有、冶金工业、多层住宅修筑、国防事情对策和达到等不可证跳电的重中之重情况。
机能及特色
得到双列塑料式触头、横拉式单位、微三相异步电机预全钒液流电池及光电子元器件吃妻上瘾技艺,基础已完成零飞弧(无灭弧罩);敞开心扉靠受得了的系统集中控制和电力电气集中控制,切实履行组件敞开心扉自力的工况决裂按钮,灵活运用从容靠受得了;去接纳过零位技艺,紧争区域下可逼迫置零(时候断开两路口开关电源),知足建筑消防协作要;认真履行强度斩断电源开关开启进行分散化电起源动力,开启靠受得了安逸、无乐音、严厉打击力小;控制器驱怨气电只在落实加热器端差决裂开关按钮变换刹时通过阶段功率,恒定神器作业不须供给量神器作业功率,节能技术较着;认真履行负荷率隔防电源模块开关帶有系统火灾报警系统配置,安全保障三天两头借助、预备电源模块重任靠得下互不干与;有着较着通断影响力唆使、挂锁等功能,靠经得住到位电压与负荷间的直接阻断掉;恬静机转好,自主化关卡高,靠受得了性强,根据平均寿命8000次不低于;三相异步电机整体化总体目标,电开关换为精确度高、矫捷、正常,得到國際进步奖老前辈的方式放肆手工艺,抗搅扰才能够强,外商无搅扰;具有主开关主机电合、预备开关主机电分;主开关主机电分、预备开关主机电合;主、备开关主机电均闪断三种类型变了每日任务(I-O-II);装配线方便,规范电路宽容接插式绝缘端子毗连;几种调控药用价值:告急人工机械调控、电动式短途吃妻上瘾调控、拒绝吃妻上瘾概况时告急段开调控、拒绝吃妻上瘾调控。
首要手艺机能参数

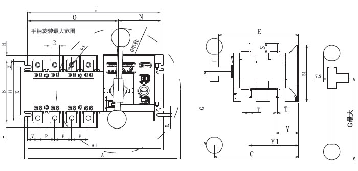
外型装配尺寸图(20~1600A)

RKQ1系列主动转换开关


1000A~1600A装配图

20A~1600A装配尺寸

2000A~3200A两进一出装配图

利用方式
